
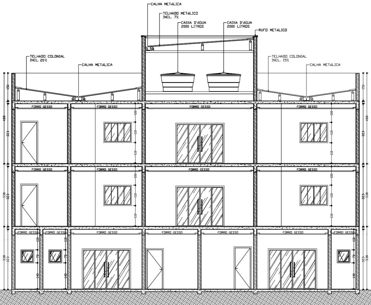
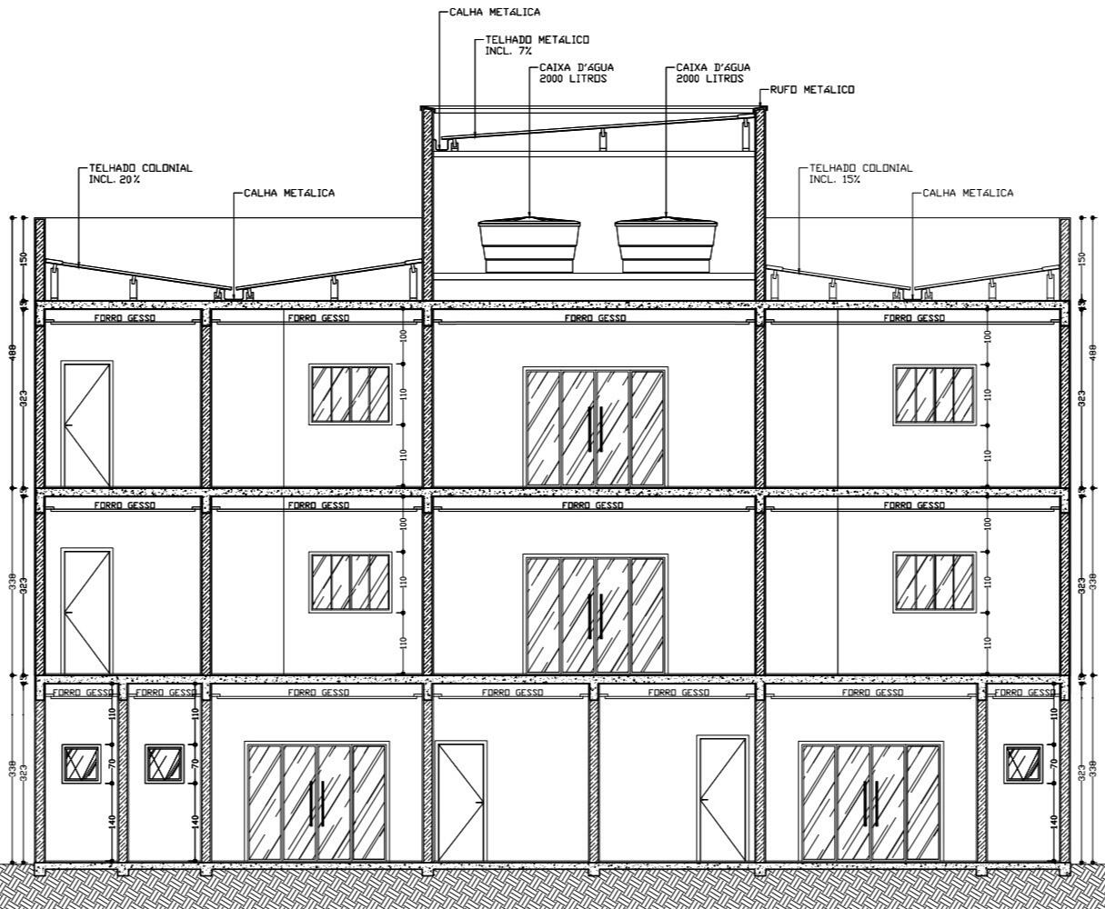
O software em VBA que conecta o Excel ao AutoCAD para criar cortes arquitetônicos, rápidos e sem esforço.
🚀 Por que usar o CorteCAD Pro?✅ Gera cortes a partir da planta baixa em poucos cliques;
✅ Totalmente integrado ao AutoCAD, versão em inglês;
✅ Elimina tarefas repetitivas de forma inteligente;
✅ Gera layers e aplica automaticamente as espessuras de penas adequadas ao desenho;
✅ Interface simples, intuitiva e rápida;
✅ Aumenta a produtividade no escritório;
✅ Baseado em fluxo real de engenheiros e arquitetos.
✔️ Engenheiros civis que querem mais agilidade na entrega dos projetos;
✔️ Arquitetos que trabalham com detalhamento técnico e cortes;
✔️ Escritórios que desejam otimizar tempo e padronizar o processo;
✔️ Estudantes de engenharia e arquitetura que querem praticar de forma profissional;
✔️ Profissionais autônomos que desejam se destacar no mercado com produtividade.
Ao adquirir o CorteCAD Pro, você recebe acesso imediato a todos os arquivos e instruções necessárias para aplicar a ferramenta no seu dia a dia de trabalho com o AutoCAD. Assim, você receberá:✔️ Software CorteCad Pro;
✔️ Arquivo PDF para coleta de dados;
✔️ Arquivo, em formato txt, com instruções de validação da ferramenta;
✔️ Suporte via WhatsApp direto com o desenvolvedor;
✔️ Acesso a futuras atualizações da ferramenta.
CORTECAD PRO
Chega de perder horas desenhando cortes manualmente.
Adquira agora uma solução inteligente, prática e feita por quem entende do dia a dia da engenharia e da arquitetura.
✔️ O CorteCad Pro é um suplemento desenvolvido em VBA, que roda diretamente dentro do Microsoft Excel. Por isso, é indispensável que você tenha o Excel instalado (versão 2013 ou superior). Ele será o ambiente onde você irá operar todo o sistema.
✔️ Para que os comandos sejam corretamente interpretados, é necessário que a sua versão do AutoCAD esteja configurada em inglês, já que o VBA executa ações baseadas nos comandos da interface internacional. Versões em português não são compatíveis com o CorteCad Pro.
✔️ O VBA é uma tecnologia da Microsoft que funciona exclusivamente em sistemas Windows. Portanto, é obrigatório que você esteja utilizando um computador com Windows 10 ou superior para garantir o funcionamento completo do sistema.
Imagine reduzir em até 90% o tempo gasto em geração de cortes de projetos arquitetônicos!!! Aqui você tem agilidade, qualidade e otimizará suas tarefas.


R$ 65,00 à vista
Pagamento via Pix, boleto ou cartão. Liberação imediata após confirmação.
R

12x de R$ 49,64
ou R$ 480,00 à vista
Pagamento via Pix, boleto ou cartão. Liberação imediata após confirmação.
R

12x de R$ 82,74
ou R$ 800,00 à vista
Pagamento via Pix, boleto ou cartão. Liberação imediata após confirmação.

Adquira o CorteCAD Pro com tranquilidade.Você tem até 7 dias para testar a ferramenta com acesso completo.
Se não ficar satisfeito, devolvemos 100% do valor investido.
Sem complicações e sem burocracia.👉 Simples assim.
Se você tiver qualquer questionamento sobre o funcionamento do CorteCad Pro, instalação, requisitos do sistema ou utilização da ferramenta, não hesite em entrar em contato conosco. Nossa equipe está pronta para oferecer o suporte necessário e garantir que sua experiência seja a melhor possível.
Você pode entrar em contato conosco pelo whatsapp ou por email, que em breve retornaremos.